Remise im Prenzlauer Berg
2023-2025
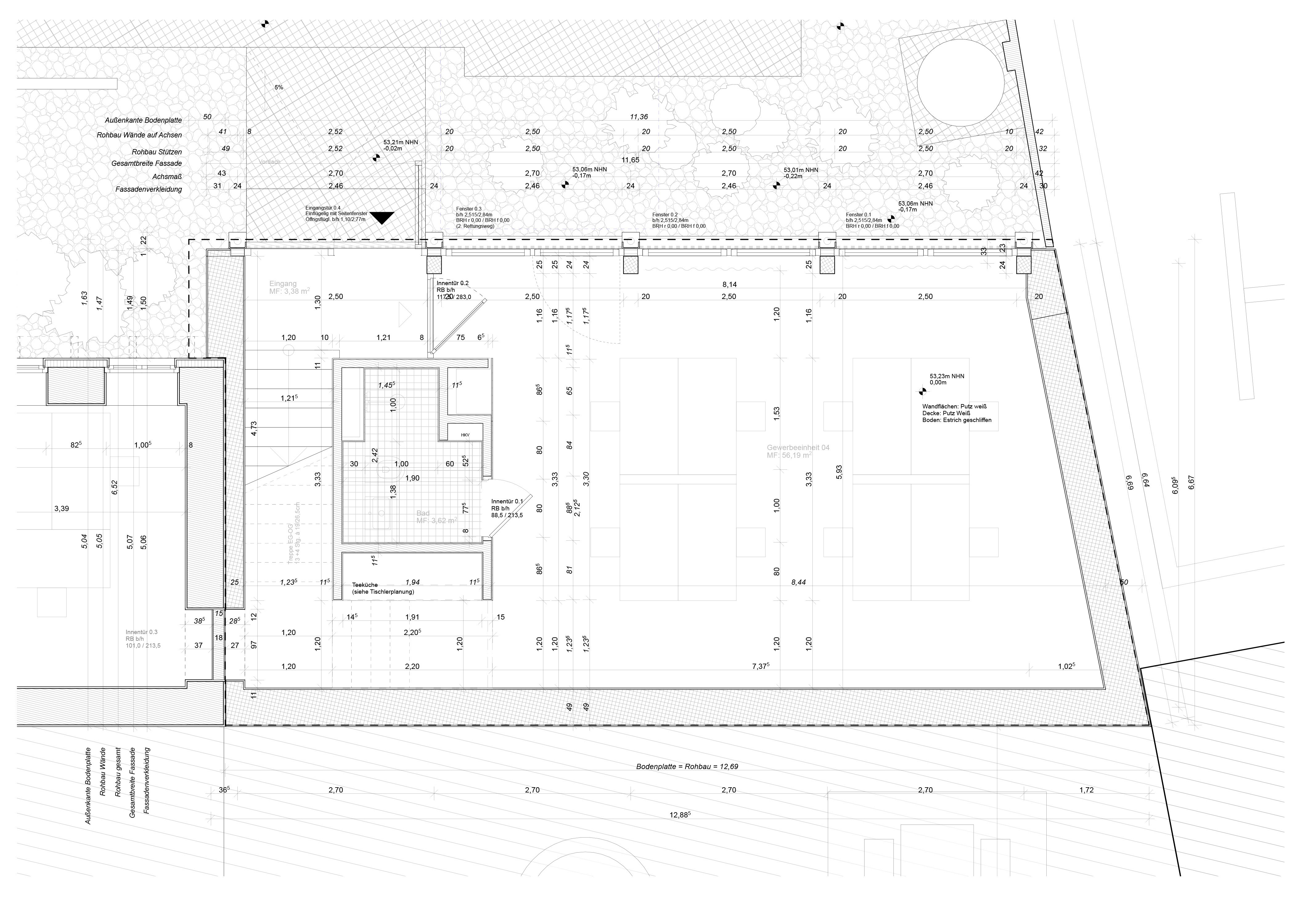
Die zweigeschossige Remise im Hinterhof eines Berliner Mietshauses wurde auf den Grundmauern eines ehemaligen Seitenflügels errichtet. Der Anbau ist nach den Prinzipien des einfachen Bauens geplant und nimmt mit einschaligen Mauerwerkswänden und Ziegeleinhangdecken den konstruktiven Duktus des gründerzeitlichen Vorderhauses auf. Umgeben von drei Brandwänden, öffnet sich das Gebäude mit einer großzügigen Glasfassade in den Innenhof und fügt sich wie ein Passstück in den engen Kontext ein.
Fotos: Felix Koch




