Haus in Falkensee
2018 - 2020
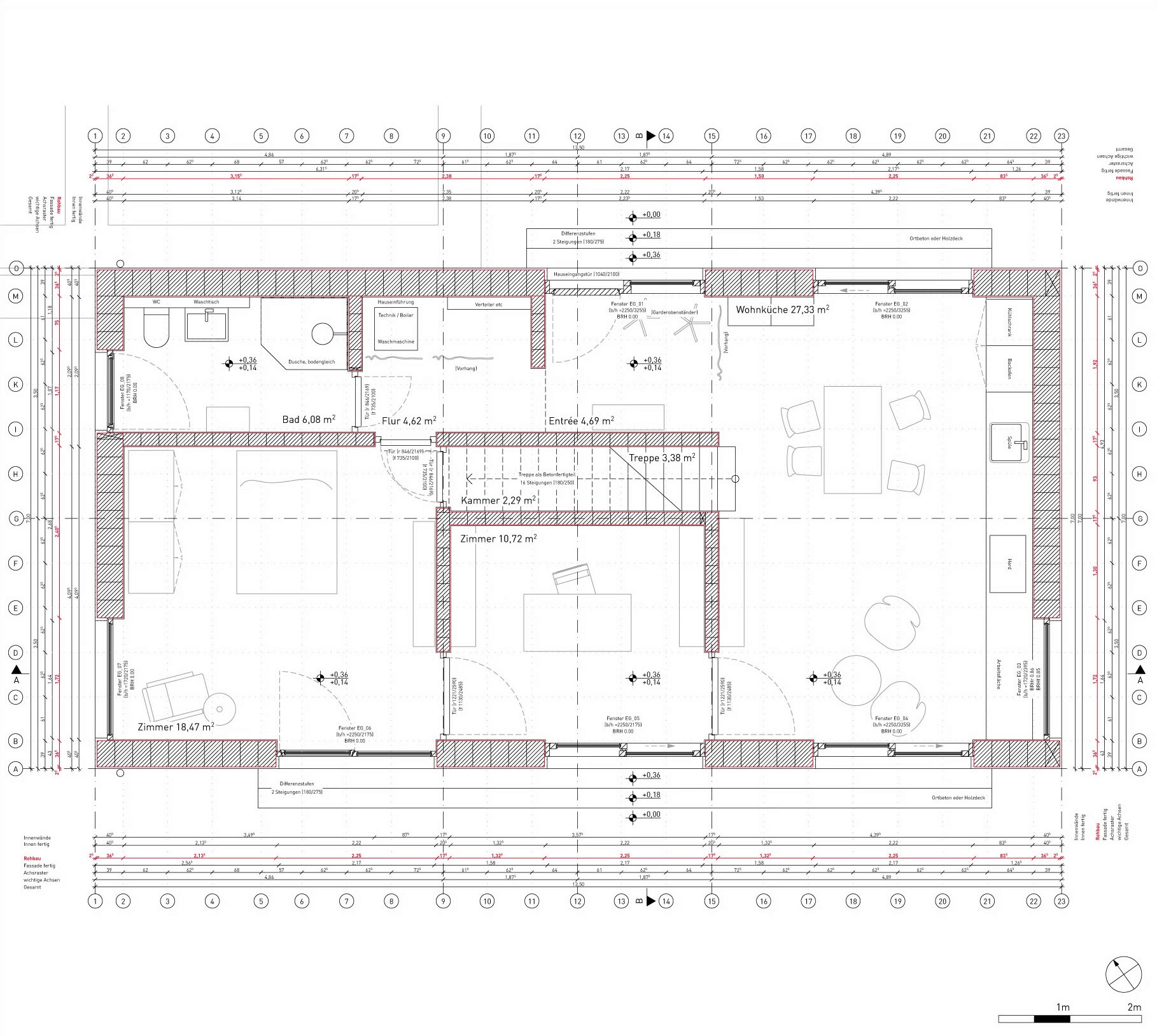
Das Wohnhaus aus einschaligem Mauerwerk bietet auf kompakter Grundfläche zwei überhohe Wohnbereiche und vier flexibel schaltbare Zimmer. Große Fenster und Sichtachsen lassen das Haus stets großzügig wirken und öffnen es zum intensiv genutzten, umliegenden Garten. Kalkputz, durchgefärbter Estrich und der sichtbar belassene Dachstuhl prägen die Innenräume.
Fotos: Felix Koch



